
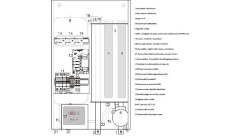
CENTROMETAL EL-CM CLASSIC 15 elektromos kazán, tágulási tartállyal és szivattyúval 15kW
3
317 990 Ft
306 900 Ft