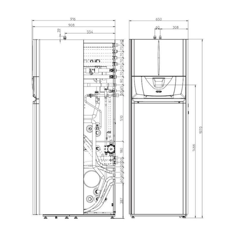
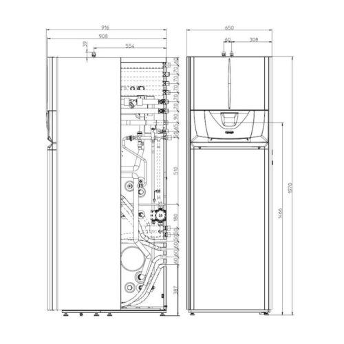
Immergas Magis Hercules Pro 9 split rendszerű hőszivattyú 9kW, beépített 235 literes HMV tárolóval, 1 fázis (3.030430)
4 264 000 Ft
